Expo 2020 Dubai Alman Pavyonu
LAVA vizyoner mimari laboratuvarı, Expo 2020 Dubai'de Alman pavyonunu sunar. Yapı, tümü yüzer bir çatı ile çevrelenmiş, çelik direklerden oluşan bir orman arasında asılı duran bir küp topluluğu olarak duruyor. Tasarım ekibi, iç mekânda yerel iklim koşullarının akıllı kullanımı ve malzemelerin yeniden kullanımı dahil olmak üzere sürdürülebilir yöntemler kullanır.

LAVA direktörü Tobias Wallisser Alman Pavyonu’nu şöyle açıklıyor: “Anahtar soru, sürdürülebilir bir çöl ortamında üç milyona kadar ziyaretçi için geçici bir sergi ve etkinlik alanının nasıl tasarlanacağımızdı. LAVA'nın çözümü, bağlantılılık fuarı temasını, ”daha azla daha çok” yaklaşımımızla, insanların doğa ve teknolojiyle merkezinde etkileşim kurmasıyla ilişkilendirdi.”


Sergi Olarak Bina: İnsanları Birbirine Bağlamak İçin Bir Araç
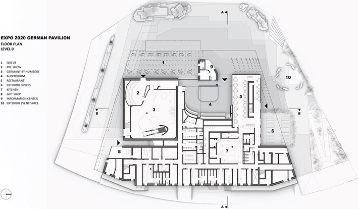
Vizyoner mimari için LAVA laboratuvarı insanları birbirine bağlamak amacıyla bir araç olarak Expo 2020 Dubai'de Alman Pavyonunu tanıtıyor. Konsollu küplerin konumlandırılması, toplanma ve etkinlikler için geniş bir merkezi olan atriyumu oluşturur. Ziyaretçi deneyiminin kalbinde yer alan bu kapalı dikey alan, tüm işlevsel alanları görsel olarak birbirine bağlar, yol bulmaya yardımcı olur, çeşitli görsel ilişkiler ve erişim noktaları oluşturur ve büyük ziyaretçi sayılarının yönetimine yardımcı olur.

LAVA proje direktörü Christian Tschersich şöyle açıklıyor: “Fuarın “zihinleri birbirine bağlamak, geleceği yaratmak” sloganına hitap etmek istedik. Bu nedenle Almanya'yı bilgi, fikir ve yenilik alışverişi için açık bir yer olan “kampüs” olarak temsil etmeyi seçtik. Binaları bir alana yatay olarak yerleştirmek yerine, üç asılı küp dikey olarak monte edilir. Bu gevşek, gözenekli cilt yığını, tek bir formdan ziyade bir topluluğu ve birbirine bağlılığı akla getiriyor.” diyor.


Sürükleyici Küplerin Üzerindeki Teraslar
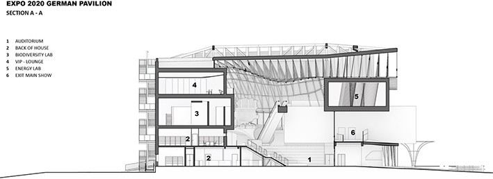
Ziyaretçi rotası, insanları sürekli olarak teraslara (küplü alanların üstünde) getiriyor. Ziyaretçiler burada geçmişlerini ve gelecekteki yörüngelerini görürler, diğer insanlarla etkileşime girerler ve fuar alanının manzarasının tadını çıkarırlar. Gerçekler ve kurgu tarafından tasarlanan sergi alanları (enerji laboratuvarı, geleceğin şehir laboratuvarı ve biyoçeşitlilik laboratuvarı), küplerin içinde bireysel sürükleyici deneyimler sunarken, teras sergileri grup etkileşimine izin verir.

Kampüs metaforu, geleneksel bir sergi salonundan ziyade tüm binayı bir sergiye dönüştürüyor. Bina artık yalnızca sergilenecek bir tuval değil, aynı zamanda insanları ve içeriği birbirine bağlayan bir araç ve Alman yeniliklerini deneyimlemek için bir yer olarak görülüyor.
Yapısal Sürdürülebilirlik
Expo 2020 Dubai'deki Alman Pavyonu’nun mesajı yapının kendisidir. Bu yapıda minimum malzeme miktarı ile maksimum hacmi oluşturulur. Üç küp, diğer işlevlerle (restoran, gösteri öncesi, ofis, evin arkası) soyut bir manzara olarak oluşturulmuş bir kaide üzerine oturtulur. Bu tasarım, merkezde büyük bir hacim yaratırken ve bir çatı gölge elemanı ve insanları güneşin sıcağından koruyan bir konfor alanının oluşmasını sağlıyor. Yapı, üç parçadan oluşan bir sandviç gibidir: manzara, yığılmış küpler, çatı. Burada insanlar doğa ve teknoloji arasında kalıyor.



İklim Kontrolü
Yığılmış küplerin akıllıca konumlandırılması yerel iklim tarafından yönlendiriliyor. Alman Pavyonu, doğrudan güneş ışığının etkisini azaltan, doğal gölge oluşturan, ısı yükünü azaltan ve iç mekân iklimini optimize eden pasif enerji tasarrufu özelliklerine sahiptir. Yapı elemanlarının bu akıllı gölge oluşturması, aynı zamanda hibrit iklimlendirmeyi de mümkün hale getiriyor. Bunun yanı sıra, yapının kapalı dış cepheleri ve birbirine açılan bir iç hava sahasına yönelik odaları ile yerel avlu evinin tasarımına da gönderme yapıyor.



Hibrit bir cephe, toplu bina hissini en aza indirir ve alanın ikonik bir çerçevesini oluşturur. Üst seviyede 900 dikey çelik direğin dinamik bir düzenlemesi, rüzgârda sallanan bir ağaç ormanı gibi hareket yaratıyor. Bu cephe kademeli olarak değişen açılarla merkezi atriyum boşluğunu çerçeveler ve ışığı modüle ederler.




Altı aylık fuar süresince kum fırtınaları ve serin günler gibi farklı hava koşullarına duyarlı, opak, trapezoidal tek katmanlı ETFE membran açılıp kapanabilir ve klima ihtiyacını en aza indirir. Pavyonun dış kabuğu da döndürülerek açılabilen ve binanın nefes almasına imkân veren 1,5 metre genişliğinde cam elemanlar içeriyor.




