Playa Viva'da Sürdürülebilir Bambu Ağaç Evler
Nomadic Resorts'un tasarım stüdyosu Atelier Nomadic, sürdürülebilirlik ve rejeneratif uygulamalara adanmış, çevreye duyarlı bir tatil yeri olan Playa Viva'da bir dizi bambu ağaç evi tasarladı. Bambu ağaç evi, tamamen şebekeden bağımsız çalışan ve enerjisinin %100'ünü güneş enerjisinden üreten Playa Viva deneyiminin ayrılmaz bir parçasıdır. Bambu ağaç evi, sağlık ve eğitimi desteklemek için yerel halkla kapsamlı bir şekilde çalışır. Aynı zamanda bu ağaç ev çevredeki araziyi restore etmek ve canlandırmak için yıl boyunca incelemeler yapar.


Bambu ağaç evi sahipleri, Rejeneratif Seyahat organizasyonunun kurucu üyeleridir. Üyeler, aynı zamanda, La Tortuga Viva kaplumbağa koruma alanını kurmuş ve desteklemiştir.


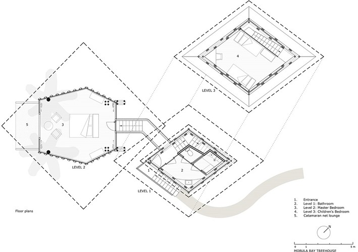
Tesisin en son uzantısı, mobula ışınlarının mülkün kıyısını geçen düzleştirilmiş, prizmatik gövdelerinden ilham alan 6 bambu ağaç evini içeriyor. Meksika kıyı şeridi boyunca dağılmış ağaç evler, sörf yapanları izleyebilecek şekilde hindistancevizi ağaçlarının üzerine tünemiştir. Her ağaç ev, ön tarafta bir ana yatak odası, arka tarafta ve alt katta banyo, üst katta ise ikinci bir yatak odası/salon içeren bir ek ağaç evden oluşmaktadır.


Ağaç evler, doğal çevreye uyum sağlamak için biyoiklimsel tasarım ilkeleri kullanılarak geliştirildi: çatının geniş saçakları, büyük bir şemsiye gibi hareket ederek, güneşin güçlü ısısı engelleyerek gölgelik görevi görüyor. Bu gölgelik, aynı zamanda ağaç evi şiddetli yağmurlardan koruyor. Yine cephe panjurları doğal çapraz havalandırmaya izin verir.

Yapılar çoğunlukla dünyanın en hızlı büyüyen yenilenebilir yapı malzemelerinden biri olan yerel bambudan inşa ediliyor. Bu durum, çok yönlü malzemenin kullanılabileceği geniş çeşitliliği sergiliyor. Ana yapı ve çatı yapısı için güçlü Guadua bambu direkleri, cephe panjurlarında kesit şeritler ve tavanı düzleştirilmiş bambu paneller kullanılmıştır. Ek binada duvar ve cephe panellerinde Phyllostachys Aurea bambu direk ve dübeller kullanılmıştır. Döşeme, sürdürülebilir şekilde yetiştirilen yerel Cumaru kerestesinden yapılmıştır.



Bütünsel tasarımın, COVID sonrası gezginlerin doğal çevreye dalmış, heyecan verici, sağlıklı konaklama yerlerinde kalma arzusuyla uyumlu olması amaçlanmıştır. Aylarca süren izolasyon ve kilitlenmelerden sonra, burada konuklar suya girebilir ve doğal ortamla yeniden bağlantı kurabilir. Örneğin dalgaların sesini dinleyebilirsiniz, gün batımının sıcak tonlarında banyo yapabilirsiniz, esintinin palmiye yapraklarında sallandığını hissedebilirsiniz veya deniz tuzunun tadına bakabilirsiniz
