Su Çiftliği ile Sanatçı Evi
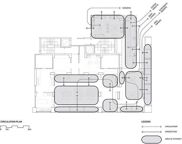
Aqua Farm ile Sanatçı Evi, birlikte yaratma ve deneyimler yoluyla zanaat biralarını keşfetmek için çok amaçlı bir alandır. Beş duyuyu keşfederek, insanlar bira yapım sürecine dokunur, görür, duyar, koklar ve tadar. Sanatçı Evi ayrıca Hong Kong'daki ilk çiftlik konseptine sahiptir. Tesis bünyesindeki su çiftliği, yiyecek ve içecek malzemelerinin çoğunu sağlar. Aynı zamanda bu çiftlik, trafik mesafesi ile su ve gübre tüketimini %90 oranında azaltarak karbon ayak izinin düşürülmesine yardımcı olur. Çiftlik, müşterilerin kendi yiyecek ve içeceklerini birlikte yaratmalarına izin veriyor.

The Artist House'un tasarımı kültürel, sürdürülebilir ve esnektir. Artist House'un şekli, zanaat birasının yapıldığı Belçika ahırından geliyor. Tasarımcılar çiftliği kopyalamak yerine, onları Hong Kong'daki zorlu bir ortama sığdırmak için daha ince portallara bölüyor. Her portal, sanatçının ortaklarıyla birlikte yarattığı bir hissi temsil ediyor. Alan, karbon ayak izini azaltmak için büyük ölçüde geri kazanılmış malzemeleri duvar ve mobilyalarda kullanıyor. Mekanik ekipman, işletme maliyetini ve enerji tüketimini azaltmak için dikkatli bir şekilde konumlandırılıyor. Hareketli mobilya, özelleştirilmiş depolama ve yaratıcı aydınlatma kullanımı, mekanın esnekliğini artırmaya yardımcı olur. Ortak tasarımcılar, yarı açık alanını 100 kişiye kadar sığacak şekilde dönüştürebiliyor.













