Işık ve Biçimin Mekansal Entegrasyonu
Çin Halk Cumhuriyeti’nin Zhangjiakou kentinde bir kayak evi
Joachim Ritter
Şimdi yeni başlangıçlar yapma ve fikirler geliştirme zamanı. Sadece eski yapı ve düşünme tekniklerinden tamamen arındırıldığımızda ve ilk bakışta bize görünmeyen yeni yollar aramaya başladığımızda teknolojik alanda yapılan sıçramalarla çok büyük gelişmeler kaydediyoruz. Bu nedenle mimaride ışık, sadece bir trend konusu değil, aynı zamanda kültürel sıçrama anlamına gelecektir…

Penda’dan Chris Precht ve Ayong Sun bu yolu şöyle tarif ediyorlar. “Biz Penda’yız. Mimari ve Tasarım hayranıyız. Yaratıcılık, inovasyon ve geleneksellik dürtülerimiz çok yoğun. Genciz, açız ve geleceği şekillendiriyoruz. Tasarımda içerik ve bağlamı baz alıyoruz. Sosyal, işlevsel, biçimsel taleplere yönelik inovatif, ekolojik ve şık çözümler geliştirmek için motive olmuş durumdayız. Sanatı dijital araçlar ile geliştiriyor ve projeleri el işi olarak gerçekleştirmeyi tercih ediyoruz. Viyana ve Beijing’de planlama ofisleri olan çok kültürlü bir tasarım topluluğuyuz. Biz Penda’yız.”

Ancak, her vizyoner ve yaratıcı mimari ışığı entegre bir öge olarak değerlendirmiyor. Sadece Penda bunu yapıyor ve de kelimenin tam anlamıyla. Işık mimarinin bir parçası, ışık mekânı ve biçimi tanımlıyor. Mimari dilinde heyecan verici öge, duvarların yumuşak, dalgalı, hafif ve havadar olması. Teknik entegre edilmiş ve görünmüyor. Görünürde olan ise sadece mimari. Işık neredeyse hissedilmiyor ve aslında sonunda amacına yönelik bir araca dönüşüyor. Mimari için geri planda kalan, tasarımın çekimser ögesi haline geliyor.

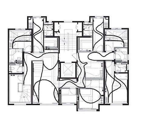
Bunun en güzel örneği, Beijing’in 160 km kuzeyinde yer alan tanınmış kayak bölgesi Zhangjiakou’daki özelikle hafta sonları çok yoğun olarak kullanılan kayak evinde görülüyor.
Kayak evinin dairesinin tasarımının ana fikri, doğanın kıştan sonra yavaş yavaş canlanışının, soğuk-sıcak ısıların, beyaz tonlarının ve renklerin heyecan verici kontrastının yaşandığı bahara geçişte eriyen karlardan doğuyor. Mimar bu ortamı baz alıyor. Beyaz sıva kaplı akıcı mekân alanları duvar ve tavanları oluşturuyor. Böylece kesintisiz bir dizi mekân yaratıyor. İç mekândaki dalgalı biçimler çevredeki dağ ve vadileri simgeliyor.
Mekânlara sıcak, doğal bir öge katmak için ahşap nişler, duvarlar ve raflar beyaz kaplamaların içine yerleştirilmiş. Bu alanlar dinlenme, eğlenme veya sanat eserlerini sergileme alanları olarak kullanılıyor. Tavanlar zeminden beş santim yukarıda ve beyaz mekân kaplamaları ile açık renkli ahşap zeminin arasındaki farkı göstermek için arkadan aydınlatılmış. Mekân kaplamalarının üst kısımları bazı yerlerde birbirinden kaydırılmış olarak uygulanmış ve yine LED’ler ile aydınlatılmış. Dolaylı olarak aydınlatılan tavan ile genel aydınlatma sağlanıyor, mekânların yerleşim düzeni öne çıkartılıyor ve istenilen ortam sağlanıyor.

Kayak evinde yedi yatak odası, kayak takımları-giysileri için geniş bir depo, birçok banyo ve büyük bir oturma odası bulunuyor. Geniş dalgalı duvarlar insanları döner merdivene yönlendiriyor. Buradan oturma ve yemek odalarına ayrıca geniş bir çatı terasına açılan üst kata gidiliyor.
Akıcı, eklem yerleri görünmeyen mekânların oluşturulması için dalga biçimli ahşap çıtalardan özel bir alt konstrüksiyon oluşturulması gerekti. Bu konstrüksiyonun üzeri bölgenin ustaları tarafından sıva ile kapatılarak istenilen, hafif pürüzlü beyaz yüzey elde edildi. Bu tür sıva işleri Çin’in kuzeyinde sıklıkla görülüyor. Bu zanaat uzun bir geleneğe sahip. Projenin ince ayrıntılarından da bu işçilik görülüyor. Çalışmada Çinli ustaların yetenekleri büyük bir artı oldu. İki kat dalgalı duvarlar için (CNC ile kesilmiş plakalar yerine) kullanılan sıva teknikleri ile kayak evi çok sade ve doğal bir ortama kavuşuyor.

Sıvalanmış mekân kaplamalarının arkasına kalorifer sisteminin boru hatları yerleştirilmiş. Isı duvarlardan çıkarak apartmana yayılıyor. Kayak pistlerinin üzerinde geçirilen soğuk bir günün ardından konuklar samimi, rahat ve mekânsal olarak heyecan verici bir evde olmanın keyfini yaşıyorlar.

Proje Künyesi:
Mimarlar: Penda, Beijing/ÇHC–Dayong Sun, Chris Precht,He Quan, Pongchong Li, Jessica Luo, Mingxue Sun
Aydınlatma tasarımı: Jing Ai
Metin: Joachim Ritter
Fotoğraflar: Xia Zhe
Kaynak: https://pldturkiye.com