Türkiye'de Tarım 4.0 (Akıllı Tarım) Örneği: İzmir Tarım Geliştirme Merkezi
Endüstri 4.0 akımının bir sonucunda teknoloji gelişimi, hizmet ve sanayi sektörlerinin ardından tarım sektörü de değişmektedir. Bu yeni değişim sonucu ortaya çıkan kavram, Tarım 4.0 (Akıllı Tarım) olarak isimlendirilir. Tarım 4.0 uygulamaları farklı ihtiyaçlara da çözüm getirmeye olanak sağlar.

Endüstri 4.0
İnsan eliyle şekillenen ve doğal ortamda yaşanan deformasyonlar günümüz yaşam koşullarını değiştirmektedir. Dolayısıyla bu dönüşümlere uyum sağlayabilecek, yaşamı sürdüren faaliyetler (beslenme ve barınma gibi) ile ilgili yeni strateji ve tekniklerin geliştirilmesi bir zorunluluk haline gelmiştir. Hiç kuşkusuz, küresel ölçekte ortaya çıkan teknolojik gelişmelerin yaşamımızı sürdürdüğümüz faaliyetler üzerindeki olumlu ve olumsuz etkileri oldukça fazladır. Bu noktada, belki de bu teknolojik gelişmeleri olumsuz ve olumlu olarak iki yüzlü bir madalyona benzetmek yanlış olmaz.

2000'li yıllardan sonra yaşanan hızlı teknolojik gelişmelerin doğal çevreyi olumsuz etkilediği açık olmakla birlikte, bu sorunlara hâlâ teknoloji ile çözüm arandığı da aşikardır. Bu nedenle, bu çevresel deformasyonların küresel boyutlarının her geçen gün artmasının dünya genelinde canlılığı (yaşamı) nasıl ve ne ölçüde etkileyeceği, günümüzde birçok çalışmanın konusu olmaktadır. Bu araştırmaların küresel ısınma, iklim değişikliği ve kuraklık, toprak kalitesinin bozulması gibi çevre sorunlarına alternatif çözümler üretmesi bekleniyor.

Tarım ve Hayvancılık Oranındaki Düşüş
Türkiye ölçeği bağlamında incelendiğinde; son yıllarda artan barınma ihtiyacına paralel olarak, göç yoluyla nüfusun daha da artması, yapılı çevrenin yaygınlaşmasına neden olmuştur. Bu durum, son yıllarda kentsel bağlamda tarım alanlarını tehlikeye atmıştır. Küçülen kent merkezlerinin artan nüfusa cevap verememesi nedeniyle yapılı çevre olgusu, tarım alanlarını dönüştürürken kentin çeperlerine doğru yayılmaya devam etmektedir. Bunun yanı sıra, 21. yüzyıl gündelik yaşamının değişen yaşam standartları ile mevcut tarım ve hayvancılık politikaları, kırsal kesimde yaşayanları kente göç etmeye zorlamaktadır. Ülke genelinde tarım veya hayvancılıkla uğraşan kullanıcı sayısının azalması, gelecekte her iki faaliyette de ciddi sorunlar yaşanacağını gösteriyor. Bu tür azalma eğilimine, çevresel deformasyonların neden olduğu doğal kaynakların azalması sorunu da eklendiğinde sorunun boyutu daha net anlaşılacaktır.

Son yıllarda tüm dünyayı etkisi altına alan küresel ısınma ve kuraklık konusu, gezegendeki yaşamın sürdürülebilirliğini tehdit ediyor. Bu kapsamda küresel (makro) ve yerel (mikro) ölçekte alınan önlem ve stratejiler kullanılarak gelecekte oluşabilecek tehditlere uyum sağlayabilen ve yaşamın sürdürülebilirliğini esas alan projeler üretilecek ve hayata geçirilecektir. Sasalı İklime Duyarlı Tarımsal Eğitim ve Araştırma Enstitüsü, bu projeler için İzmir'de örnek bir uygulama olarak öne çıkıyor. İzmir'deki 2080 kuraklık tahminlerine dayanılarak hazırlanan proje, bu kuraklık durumuna hizmet edecek ve hafifletmeye çalışacak deneysel bir çalışmanın ürünüdür.

İzmir'de Akıllı Tarım
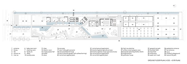
İzmir'in Çiğli İlçesi’ndeki Sasalı'da yer alması planlanan proje, eğitim ve üretimin ana odak noktası olarak tasarlandı. Bu proje kapsamında; normal ve akıllı toprak uygulamalı tarım alanları, yüksek mertebe ekimli tarım alanları, seralar, eko-pazar, çok amaçlı salon, eğitim sınıfları, idari tesisler, laboratuvarlar, kütüphane, teknik hizmetler ve ıslak hacim alanları oluşturulmuştur. Mekânsal hacimleri lineer bir şekilde bir arada tutan bioswale (bio-bulvar) ve ona bağlı sirkülasyon aksı tasarımın omurgasını oluşturuyor.


Bu omurga tasarım yapısı, kullanıcıların bölgeyi ziyaretleri sırasında enstitünün operasyonel mekaniğini öğrenmelerini ve deneyimlemelerini sağlar. Kuzey-güney aksında uzanan alana giriş, kuzey aksından sağlanmaktadır. Ana girişten başlayarak sirkülasyon omurgası, ziyaretçileri/kullanıcıları öncelikle eğitim odaklı mekanlara (laboratuvar, kütüphane gibi) getirir. Sirkülasyon omurgasının genişletilmesiyle oluşan Eko Çarşı ve eğitim mekanları ile tarımsal faaliyetlerin (sera ve dikey bahçe gibi) yapıldığı mekanlar birbirinden ayrılmaktadır. Eko çarşı alanının ilerisinde yer alan tarımsal faaliyet alanları, kullanıcıları farklı tarım tekniklerini gözlemlemeye ve deneyimlemeye davet ediyor.


KENTSEL HAFIZANIN GEÇMİŞİ – BUGÜNÜ – GELECEĞİ
Proje alanının fiziksel çevresi yaklaşık yüz yıllık bir süre boyunca araştırılmıştır. Proje alanı, 1970'li yıllara kadar kırsal bir peyzaj içerisinde yer alırken, o yıldan itibaren kademeli olarak kentleşme faaliyetleri gözlenmiştir. 2008 yılında Sasalı Doğal Yaşam Parkı inşaatı ile proje alanı çevrelenmiş ve bugün gördüğümüz kimliğe kavuşmuştur. Avrupa Birliği Kentsel Green Up Programı kapsamında 2019 yılında akademi-yerel yönetim-yüklenici iş birliği ile proje alanı tasarlandı. 2050 yılına kadar dünya nüfusunun %80'inin kentsel alanlarda yaşayacağı gerçeğinden dolayı bu süreçte kentleşmenin yeniden doğallaştırılması hedeflenmektedir.
IPCC AR4'e göre 21. yüzyılda Türkiye dahil, güney Avrupa'da şiddetli ve uzun süreli kuraklıkların, sıcak hava dalgalarının ve kısa süreli ancak şiddetli sağanak yağışların görüldüğü günlerin sayısının artması bekleniyor. Bu kapsamda hidro-meteorolojik aşırılıklara karşı dayanıklılık oluşturmak için; iklim değişikliğinin etkilerinin azaltılması, sürdürülebilir yağmur suyu yönetimi ve doğa temelli uygulamaların yaygınlaştırılmasına yönelik stratejiler dikkatle ele alınmış ve bu konulara ilişkin stratejiler geliştirilmiştir.
Sorunlar -1 : Su taşması riski - sel
Çözümler -1 : Yüzey suları bioswales'e aktarılır ve özel seçilmiş yerel bitkilerle temizleneceği sızıntı havuzlarında toplanır. Taşkın seviyesinin çok yüksek olması durumunda su, alt drenaj sistemine aktarılacaktır. Su, sel bitene ve toprak kuruyana kadar drenaj sisteminde depolanacak ve daha sonra temizlenmiş su tekrar yeraltı suyuna verilecektir.
Konular -2 : Tozlayıcı böceklerin azaltılması.
Çözümler -2 : Peyzaj elemanlarının yerel bitkilerden ve polen bitkilerinden seçilmesi. Herhangi bir kimyasal içermeyen doğal malzemelerle tozlayıcı evler oluşturularak tozlayıcı böceklerin uğrak yeri oluşturulmaktadır.

Konular -3 : Toprağın artan tuzluluğu ile verimsiz tarım.
Çözümler -3 : Topraksız tarım tekniklerinin uygulanması, dikey tarım tekniklerinin uygulanması, biochar (akıllı toprak) kullanılarak tarım tekniklerinin uygulanması, yüksek dereceli ekim tekniklerinin kullanıldığı tarım alanları
Çözümler -4 : Bir 'Bio-bulvar' oluşturulması insanlar için bir farkındalık rotası oluşturmak için rota.
Farklı uygulamalı tarım teknikleri ile verimleri ölçün.
Kooperatifleri destekleyin Doğal malzemelerin kullanımını destekleyin
Suyu yeniden kullanmak üzere çatılarda depolayın
Avrupa Birliği'nin en büyük kentsel hibe programı “HORIZON 2020” kapsamında iklim değişikliği, kontrolsüz kentsel büyüme, sel riski, gıda ve su güvenliği, biyolojik çeşitlilik kaybı, bozulma gibi sorunlara 'sürdürülebilir çözümler' geliştirilmesi. Doğal kentsel çevrenin iyileştirilmesi ve kirlenmiş-terkedilmiş-atıl kentsel alanların rehabilitasyonu hedeflenmektedir.


· Mimarlar: Mert Uslu Mimarlık
· Alan: 2000 m²
· Yıl: 2021