Almanya'da Mimarlık Eğitiminin Bir Öğrenci Deneyimi Üzerinden Anlatımı
Dünyanın sayılı üniversiteleri arasında yer almasının yanında Almanya'nın en saygın araştırma ve eğitim kurumlarından biri olarak da tanınan Karlsruhe Teknoloji Enstitüsü (KIT) diğer tüm bölümlerinde olduğu gibi Mimarlık Bölümü’nde de mesleki uygulamalarıyla önemli başarılar elde etmiş değerli akademisyenleri barındırmakta. Mimarlık Bölümü’nde okuyan öğrencilerin mezun olabilmeleri için ise en önemli baraj, bu akademisyenlerden oluşan bir jürinin değerlendirdiği Lisans Tezi adındaki mimari proje çalışmasını başarıyla tamamlayabilmek. Bu proje çalışmasının kent ölçeğinden mekan ölçeğine kadar tüm yönleriyle belirli bir bağlam içerisinde çözülmesi beklenmekte.
Ayrıca şehir ve bölge sakinleri için nasıl bir rol oynadığı, tarihi çevreye olan etkisi, mekansal organizasyon başarısı, yapının inşaa biçiminin maliyetler açısından gerçekçiliği, sistem detaylarının teknik şartnamalere uygunluğu ve uygulanabilirliği gibi bir çok kriter tez çalışmasının jüri tarafından değerlendirilmesi aşamasında dikkate alınan kriterlerden bazıları. Nihai projenin sunumunda ise tüm süslemelerden arınmış, renklendirmelerden uzak, mümkün olduğunca yalın bir dil kullanılması isteniyor. Bu tür Lisans Tezi çalışmasına verilebilecek en başarılı örneklerden biri ise Profesör Meinrad Morger’in yürütücülüğünde 2023 yılı yaz sömestirinde bir Türk öğrenci olan Orhun Polat tarafından gerçekleştirildi.
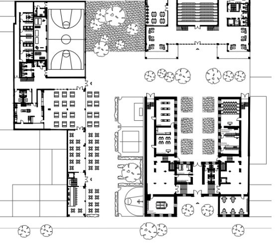
Tez çalışmanın konusu Almanya’nın Karlsruhe şehir merkezinin güneyindeki Schützenstraße bölgesi için bir okul tasarlanmasıydı. Proje arsası içerisinde 1875- 1877 yılları arasında mimar Heinrich Lang tarafından inşa edilmiş tarihi eser niteliği taşıyan eski bir okul binası ve bu binaya hizmet etmesi için sonradan yapılmış yemekhane ile spor salonu bulunuyordu. Tez çalışmasında istenenlerden biri de mevcut bu binaların korunması ve tasarımın bir parçası haline getirilmesiydi. İhtiyaç programı kapsamında ise farklı işlevlere hizmet edecek nitelikteki 90’ın üzerindeki mekanın toplamda 3400 m2 içerisinde doğru bir planlamayla çözümlenmesi isteniyordu. Yapılan bu Lisans Tezi çalışmasında başarılı bulunan ve ilginç fikirleri barındırması nedeniyle ön plana çıkan projelerden biri Orhun Polat’ındı. Polat, bu zorlu süreci ve süreç içerisinde aldığı tasarım kararlarını gerekçeleriyle birlikte kendi ağzından şöyle anlattı: Projeye ait tasarımın biçimlenmesinde en önemli etkinin saha analizinden elde edilecek sonuçlara bağlı olduğunu düşünüyorum. Başka bir değişle arsanın güçlü ve zayıf yanları ya da tehdit ve fırsatları bilinmeden bir form arayışına gitmek mümkün değil.
Proje arsasını bu gözle incelendiğimde en çok dikkatimi çeken şeylerden biri en başta tehdit gibi görünen ama akılcı bir çözümle fırsata dönüştürülebilecek potansiyele sahip olan eski okul binasının devasa boyutlardaki sağır duvarıydı. Ayrıca arsanın hemen arkasında tasarımın parçası haline getirmem gerektiğini düşündüğüm bir kreş binası bulunuyordu. Proje arsası çevre binalar tarafından sarılmış olmakla birlikte boş alanları oldukça zorlayıcı bir geometriye sahipti. Tüm bunlara ilave olarak arsanın içerisinde en az tarihi okul kadar eski, son derece güzel ama bulunduğu yer açısından bir o kadar da düşündürücü olan büyük bir ağaç bulunuyordu. Yemekhane ve spor salonu hem geometrik açıdan hem de konumu açısından eski okul binasıyla ilişki kurmuyordu ve yeni ilave edilecek binalarla birlikte yemekhane işlevsel olarak artık yeterli olamayacaktı.
_1734005530.jpg)
Arsa sınırları Kreş binası Yemekhane binası Eski okul binası Kapalı spor salonu Sana analizine paralel olarak yaptığım araştırmalarda proje konseptini belirlemeye yönelik cevap bulmaya çalıştığım sorulardan en önemlileri ise şu şekildeydi: Öğrenme eyleminin gerçekleştirileceği bir okulu biçimlendirecek temel kavram ya da kavramlar neler olabilirdi? Öğrenme eyleminin performansını artıracak bir proje konsepti nasıl olmalıydı? Yaptığım okumalar sonucunda, etkin bir öğrenme eyleminin en önemli unsurunun, bu eylemin içinde yer alan öğrencilerin birbirleri ve çevreleriyle olan “etkileşimi” olduğunu gördüm.
Buna bağlı olarak projemin bütününü oluşturan tüm unsurların tasarımında öğrencilerin birbirleriyle, eğitmenlerle ve içinde yaşadıkları kentin insanlarıyla olan etkileşimlerini en üst seviyeye çıkartmaya yönelik bir bakış açısı geliştirdim. Başka bir ifadeyle tasarımını yapacağım bu okul duvarlarla izolo edilmiş bir yer değil, gündelik hayatla kaynaşmış, kent halkıyla iç içe yaşanan bir etkileşim alanı olmalıydı. Tasarımımı jüri üyelerinin isteğine uygun olarak genelden özele olacak biçimde kent ölçeğinden bina, mekan ve yapı elemanı ölçeğine doğru geliştirdim.
Yine Bitirme Tezi kapsamında bizden istenen en önemli kriterlerden biri ise binanın sokakla olan ilişkisinin efektif ve doğru bir şekilde kurulmuş olmasıydı. Bu amaçla öncelikle projenin kentle olan ilişkisini kurabilmek için arsanın ana yola bağlanan dar ve uzun bölümünü bir etkileşim sokağı olarak tasarlamaya karar verdim. İşlevsel olarak bunu sağlayabilmek için ise öğrencilerin kent halkıyla biraraya gelebilecekleri ve okulun bir parçası olarak hizmet veren kafe, sanat atölyeleri ve bu atölyelerin çalışmalarının sergilendiği bir bina tasarladım. Etkileşim sokağının uzun cephesi boyunca devam eden bu binayı olabildiğince dar yapmamın nedeni ise sokağı kent halkı için daha davetkar kılacak genişlikte tutabilmek içindi. Binanın sokakla olan ilişkisini en üst seviyeye çıkartabilmek için ise tüm cephe boyunca uygun hava koşullarında açılabilen katlanır cam cephe sistemlerini kullandım. Böylece binaya ait tüm kapalı mekanların istenildiğinde sokağın bir parçası olacak şekilde açık hale getirilebilmesini mümkün kıldım.
Tüm bunlara ilave olarak yeni yaptığım binanın zemin katındaki kafe, mevcut yemekhane ve kapalı spor salonunu içeriden birbirlerine bağlayarak, işlevsel yönden bütüncül bir çözüm sağladım. Bu şekilde yemekhaneyi de öne doğru büyütmüş ve yeni ihtiyaçlara uygun hale getirmiş oldum.

Kafe ve sanat atölyelerinin olduğu binanın hemen karşısına konumlandırdığım öğrenci ve kent halkının ortak kullanabilecekleri açık spor alanlarını ise saha analizi sırasında fırsata dönüştürebilecek bir tehdit olarak gördüğüm eski okul binasının sağır duvarının hemen önüne ve tüm duvar boyunca yerleştirdim. Bu şekilde sağır duvarı işlevlendirerek tasarımımın önemli bir parçası haline getirdim.

Ayrıca sağır duvarın hemen yanında olan ve daha öncesinde korumaya karar verdiğim büyük ve eski ağacı hem öğrencilerin hem de halkın birlikte kullanabileceği sebze bahçesinin odak noktası haline getirdim. Ayrıca herkesin biraraya gelebildiği bu etkileşim sokağı üzerinden yeni yapılacak okul binası ve eski okul binalarına ulaşılabilmesini sağladım.

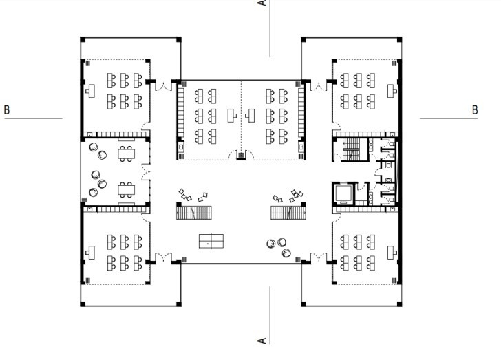
Bitirme Tezi kapsamında bize verilmiş olan ihtiyaç programındaki farklı işlevlere yönelik mekanları planlarken eski okul binasının sol kolundaki alanlara teknik/teknoloji atölyelerini ve bilgisayar laboratuarlarını yerleştirdim. Sağ kolundaki alanlara ise idari mekanları, eğitmen odaları ve deneylerin yapılabildiği mekanları da içeren anfileri koydum. Yeni okul binası olarak tasarladığım yapıda ise özellikle sınıfların birbirleriyle, iç ve dış mekanlarla ilişkisini en üst seviyeye çıkartmaya çalıştım. Buradaki amacım öğrencilerin yakın çevreleriyle olan etkileşimlerini artırmaktı. Bu düşünceyle iletişim sokağındaki kafe ve sanat atölyelerinin bulunduğu binada olduğu gibi bu binada da açılabilen katlanır cam cephe sistemlerini kullandım. Bu cephe yüzeyler istenildiğinde boydan boya açılacak, bu şekilde öğrenciler sınıftayken bile sanki dışarıdaymış gibi açık havada ders yapabilecek ya da dinlenme periyotlarında binayı terk etmeden açık havada oturabileceklerdi. Ayrıca bu şekilde sınıflar maksimum ışık alabilir hale de gelmişti. Bu şekilde yine Bitirme Tezi kapsamında bizden beklenen yeni bir eğitim anlaşını “Maksimum Etkileşim” kavramını eğitimin bir parçası haline getirerek ortay koymaya çalıştım.

Etkileşimi artırmanın bir diğer yolu ise sınıfları istenildiğinde birleştirilebilir yapmaktaydı. Bu amaçla ortadaki sınıfların arasındaki bölücü duvarları açılabilir hale getirdim. Bu şekilde tüm sınıfların ikişerli olarak birleştirilebilmesi farklı sınıflardaki öğrencilerin birlikte çalışmasına olanak verdiği gibi, orta hole açılan duvarların da hareketli şekilde tasarlanması sınıflarla etkinlik alanının istenildiğinde tek bir mekan gibi kullanılmasını da sağladı. Böylece eğer istenirse aynı kattaki tüm sınıfların ortak ders ya da sosyal faaliyetlerine tek bir mekanda yapabilmelerine imkan veren büyük bir alan oluşturdum.
Yeni binadaki etkileşim odaklı tasarım anlayış ile eski binadaki plan işleyişinin mümkün olduğunca çok bütünlük oluşturması gerekiyordu. Bu nedenle yeni okul binası ile eski okul binası arasındaki yeşil alanı eğer istenirse uygun hava koşullarında dışarıda ders yapılmasına imkan verecek şekilde iki bina tarafından ortak kullanılacak şekilde düzenledim.

Yine öğrencilerin yakın çevreleriyle olan etkileşimlerini artırabilmek için eski okul binası, yeni tasarlanan okul binası ve kreş binası arasındaki bütünleşmeyi sağlamaya çalıştım. Bu amaçla yeni okul binasını, kreş ile eski okul binası arasında çözdüm.
Yeni okul binasının zemin katında yer verdiğim konferans salonunu, her iki taraftaki basamaklı yapısıyla eski okul binası, yeni okul binası ve kreş arasında görsel ve fiziksel bir bağ kurmayı sağlayan asli unsur olarak ele aldım. Bu amaçla konferans salonunu kreş tarafından da kullanılabilir hale getirdim. Bunun için konferans salonuna ait sahneyi istenildiğinde açılan ve bu şekilde kreş tarafındaki anfi ile bütünleşen bir sahneye dönüştürdüm.

Yeni okulun plandaki formunun belirlenmesinde ise eski okul binasının planını referans alarak tasarımda form yönünden de bir süreklilik sağlamaya çalıştım. Bu bütünleştirme fikrini, cephede kullanılan malzemeler ile yapı bileşeni seviyesine kadar taşıdım.

Tüm bunların sonucunda gerek kapalı gerekse açık alanlarda mekan ölçeğinde öğrencilerin birbirleriyle, eğitmenleriyle ve kent halkıyla “Maksimum Etkileşim” yaşadı.

Bu yolla bir çok şeyi etkileşim üzerinden hayatın kendi içinde öğrendiği bir okul projesi tasarlamış oldum.
KAYNAKLAR:
Google (2024) Uhlandschule, Schützenstraße, Karlsruhe, Almanya. Erişim Yeri: https://earth.google.com/web/@49.00279543,8.40648222,112.80986369a,245.52348535d, 35y,26.67744286h,32.3891364t,0r (Erişim Tarihi: 21 Kasım 2024)