Brooklyn’de Değişim

Habitat for Humanity, Amerika Birleşik Devletleri'nde, 1967 yılından Millard Füller tarafından kurulmuş.

Dünya genelinde beş bölgedeki ofisleriyle, yoksul yerleşim bölgelerinde araştırmalarda bulunarak, barınma ihtiyacı olan insanları tespit eden, onlar için yaşanabilir yerleşimler oluşturmakla ilgilenen, kar amacı olmayan bir organizasyon. Habitat for Humanity topluluğunu, Amerika Birleşik Devletleri içinde bağımsız iştirakler temsil ediyor. Bu iştiraklerden biri olan Habitat for Humanity-NYC, genel olarak New York City çevresinde ihtiyaç sahiplerine kalitesi yüksek konutlar sağlamak ve New York’luları ekonomik olarak sürdürülebilir yerleşim bilinci etrafında toplama amacıyla faaliyet gösteriyor.

Habitat for Humanity-NYC, bu misyonun çerçevesinde, New York City içindeki gelir seviyesi ve yaşam kalitesi en düşük bölgelerinden Brooklyn’in Brownville Ocean Hill bölgesinde terkedilmiş boş bir arazide proje geliştirmesi için Dattner Architects mimarlık ofisiyle bağlantı kurarak, bu arazide on iki müstakil konuttan oluşan bir yerleşim kurgulamışlar. Mimari ofisin yönlendirmesiyle, bu arazinin daha çok ailenin, daha sürdürülebilir ekonomik şartlarda yaşayabileceği, toplu konut formunda bir yerleşimin geliştirilmesine yeterli olduğuna karar verilmiş.


Çöp yığınlarıyla dolu, terkedilmiş haldeki bu parsel New York Şehri Yerleşim Geliştirme ve Koruma Departmanı tarafından 13 dolar gibi sembolik bir fiyata Habitat’a tahsis edilmiş. Sonuçta ortaya Habitat for Humanity’nin ülke içinde o ana kadar gerçekleştirdiği, en büyük ve en yeşil yerleşim projesi Atlantic Avenue Konutları ortaya çıkmış. Toplam 4900m² alana sahip dört katlı üç apartman bloğundan oluşan proje, toplam 41 adet kat mülkiyetli daireden oluşuyor. Her bloğun her katında bir, iki ve üç oda içeren daireler, ortak kullanıma açık toplanma mekanı ve çamaşırhane bulunuyor. Yerleşimciler, yeşil alanlardan, oturma gruplarından, oyun alanlarından oluşan ortak bir avluyu paylaşıyorlar. Projeyi, Habitat for Humanity-NYC bütün olarak 11.6 milyon dolar maliyetle 2009 yılının Eylül ayında tamamlamış. Bu maliyetin büyük çoğunluğu çeşitli firmaların ve kurumların destekleriyle karşılanmış.

Projede ev sahibi olabilmek birkaç koşulun sağlanmasını gerekiyor. Bu şartların başında ise kişilerin ev sahibi olmamaları koşulu yer alıyor. Ayrıca şehrin ortalama yıllık gelirinin %45- %80 arasında ki gelire (yaklaşık olarak $31.905-$56.720) sahip olmaları, aylık gelirlerinin 1/3’ünü ev ödemeleri için ayırabilmeleri ve ortalama 145.000 dolar olan daire bedelinin yüzde 1’ini ödeyebilecek durumda olmaları gerekiyor. En önemlisi ev sahibi olabilmek için yetişkin başına en az 300 saat kendi sahip olacakları evlerinin yapımında çalışma koşulunu yerine getirmeleri isteniyor. Bu ortak iş yapma bilincine, Habitat for Humanity-NYC “ter eşitliği” ismini veriyor.

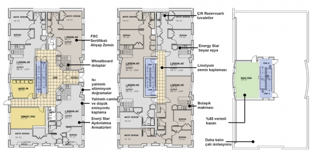
Habitat ilk defa bu binada denediği ve uyguladığı yeşil bina yaklaşımı ile binanın tasarım aşamasında, yapım süresi boyunca ve sonuçta yaratacağı yaşamın etkilerinde, etkili enerji kullanımı, ekonomik sürdürülebilirlik, insan sağlığı ve yaşam kalitesinin yükseltilmesi ilkelerini göz önünde bulundurmuş. Proje, USGBC LEED for Homes Gold sertifikasyonuna sahip olmaya hak kazanmış. Bu süreçte Habitat, tasarımda ve uygulamada, binalarda enerji kullanımı ve malzeme seçiminde ekolojik kararlar vererek, sürdürülebilir yaklaşımlarda bulunulmuş.

Energy Star Standartı

Kullanılan tüm beyaz eşyalar, aydınlatma elemanları, havalandırma ve ısıtma ekipmanları Energy Star standartlarına uygun olarak seçilmiş ve kullanılmış. Energy Star, Amerika Birleşik Devletleri çıkışlı, enerji verimli son kullanıcı ürünlerine verilen, zamanla da diğer birçok ülkenin dâhil olduğu uluslararası bir standart. Bir ürünün Energy Star logosu taşıyabilmesi için, enerjinin verimsiz kullanımından kaynaklanan sera gazı salınımının ve diğer çevreye zararlı maddelerin oluşumunun düşük tutulması ve ürünün hiçbir performans, özellik ve konfor eksikliği içermeden enerji tasarrufu yapabilmesi gerekiyor. Binanın enerji verimliliğini arttırmak için ısı kaybını önleyen mikrofilm kaplı camlar kullanılmış, yüksek verimli, düşük emisyonlu doğramalar düşünülmüş. Isıtma sistemi yüksek verimli tesisatla kurulmuş. Su tüketimi, düşük debili armatürler ile yüksek verimli su tesisatı ile düşürülmüş.

Binada, LEED’e uygun olarak, belli oranda geri dönüştürülmüş yapı malzemeleri kullanılmış. Örnek olara; duvar izolasyonlarında, blue jeans den geri dönüştürülerek üretilmiş bir malzeme kullanılmış. Mutfak tezgahları da, geri dönüştürülmüş cam, geri dönüştürülmüş kağıt ve yanmış kömür külü gibi bileşenlerden oluşan çimento kompozit bir malzemeden üretilmiş. Bazı dairelerdeki dolaplar Rockefeller Center’da geçmiş yılbaşı kullanılan yılbaşı ağacının ahşap malzemelerinden geri dönüştürülerek üretilmiş.

Bu projede Habitat; evlerin ahşap dolaplarının imalatında, işsiz ve niteliksiz işgücünü eğiterek, daha iyi ücretlerle daha iyi olanaklarda çalışabilecekleri işler sağlayan “Brooklyn Workforce Innovation” örgütünün katılımcılarını görevlendirmiş. Böylece hem iş gücü sağlanmış hem de katılımcıların becerilerine katkıda bulunulmuş. Üretimde kullanılan tüm ahşap malzemeler, Forest Stewardship Council (FSC) sertifikasına sahip malzemelerden seçilmiş.

Yaşam kalitesini arttırmak amacıyla projede kullanılan tüm yapı kimyasalları, geleneksel yüksek miktarda “uçucu organik bileşenler” (VOC) içeren kimyasallar yerine, daha düşük VOC değerine sahip, sağlığa zararlı zehirli maddeler içermeyen alternatifleri kullanılmış. Ev sahiplerini VOC’ların tetikleyebileceği solunum sorunlarından uzak tutmak planlanmış ve etkin bir ev havalandırma sistemiyle iç havanın sağlıklı ve kaliteli olması sağlanmış.

Projeyi oluşturan üç bloğu, bir otopark dahil ederek araziyi verimsiz kullanmak yerine ortalarında ortak kullanıma açık bir avlu kurgulanmış. Avlu, çocuk oyun gruplarından, oturma alanlarından, bakıma ve sulamaya çok ihtiyacı olmayan yerel bitkilerden oluşan yeşil alanlardan meydana gelmiş. Bu alanın çevrede eksikliği hissedilen yeşil alan ihtiyacına az da olsa karşılık gelebileceği ve yerleşimcileri toplu taşımanın avantajlarına teşvik edebileceği düşünülmüş.

Habitat for Humanity, the Atlantic Avenue Residents projesiyle sürdürülebilirliğe yeşil olmanın dışında ek olarak ekonomik ve sosyal yönüyle de yaklaşmış. Binaların uygulamasında sadece dış kabuk ve çekirdeklerin inşaatı için bir yüklenici firma görevlendirilmiş. Kalan diğer uygulama işlerinde ev sahiplerinin iş gücünden ve 10.000 kadar Habitat for Humanity –NYC gönüllüsünden faydalanılmış. Bu süreç içerisinde Proje iki yıllık inşaatı süresince yakın çevresinde 111 iş olanağını destekleyip, 20.45 milyon dolar ekonomik hareketlilik yaratmış. Bu ekonomik sürecin 2 milyon dolar miktarı projenin çevresindeki yoksul bölgelere iş olarak aktarılmış. Önünüzdeki kırk yıl içerisinde de projenin yaklaşık 34.5 milyon dolarlık ekonomik hareketliği çevresinde yaratacağı öngörülmüş.

Habitat for Humanity-NYC, bu projenin oluşturduğu olumlu ivmeyle kazanılan deneyimi, New York’un benzer bölgelerindeki projelerinde de uygulamaya başlamış. Örneğin; Güney Bronx’da 50 ünitelik bir proje ve onun yakınlarında 69 ünitelik farklı bir projeyle aynı yaklaşımda çalışmalarına devam ediyor. Habitat bu fikir çerçevesinde yerel otoritelerden ve gönüllülerinden aldıkları destekle New York genelinde uygulamalarına devam etmeyi planlıyor. l

Kaynakça

http://www.habitat.org

http://www.habitatnyc.org/

http://www.dattner.com

Jeff Vandam, New York Times,

Making History in Brooklyn Neighborhood, 17 Ocak 2010

Atlantic Avenue Residences Fact Sheet,

Habitat for Humanity New York City

http://www.habitatnyc.org/newsroom/presskit/

Atlantic_Ave_Dedication_Release.pdf

http://www.rodale.com/green-affordable-housing?,1

http://www.energystar.gov/index.cfm?

http://www.greenrightnow.com/wabc/2009/09/28/

nyc-gets-largest-greenest-complex-ever-built-

by-habitat-for-humanity


Yorum yaz...

Teşekkür ederiz. Yorumunuz onaylandıktan sonra yayınlanacaktır.
Üzgünüm. Yorumunuz gönderilemedi. Lütfen tekrar deneyin.
  • (Yayınlanmayacak)